
Maîtrise d’ouvrage : privée
Montant des travaux : 60k€HT
Surface intérieure : 62 m²
Programme :
Réhabilitation lourde d’un appartement
Amélioration thermique :
Isolation des murs par l’intérieur
Installation d’une ventilation
Remplacement de menuiseries
Réfection à neuf du système de chauffage
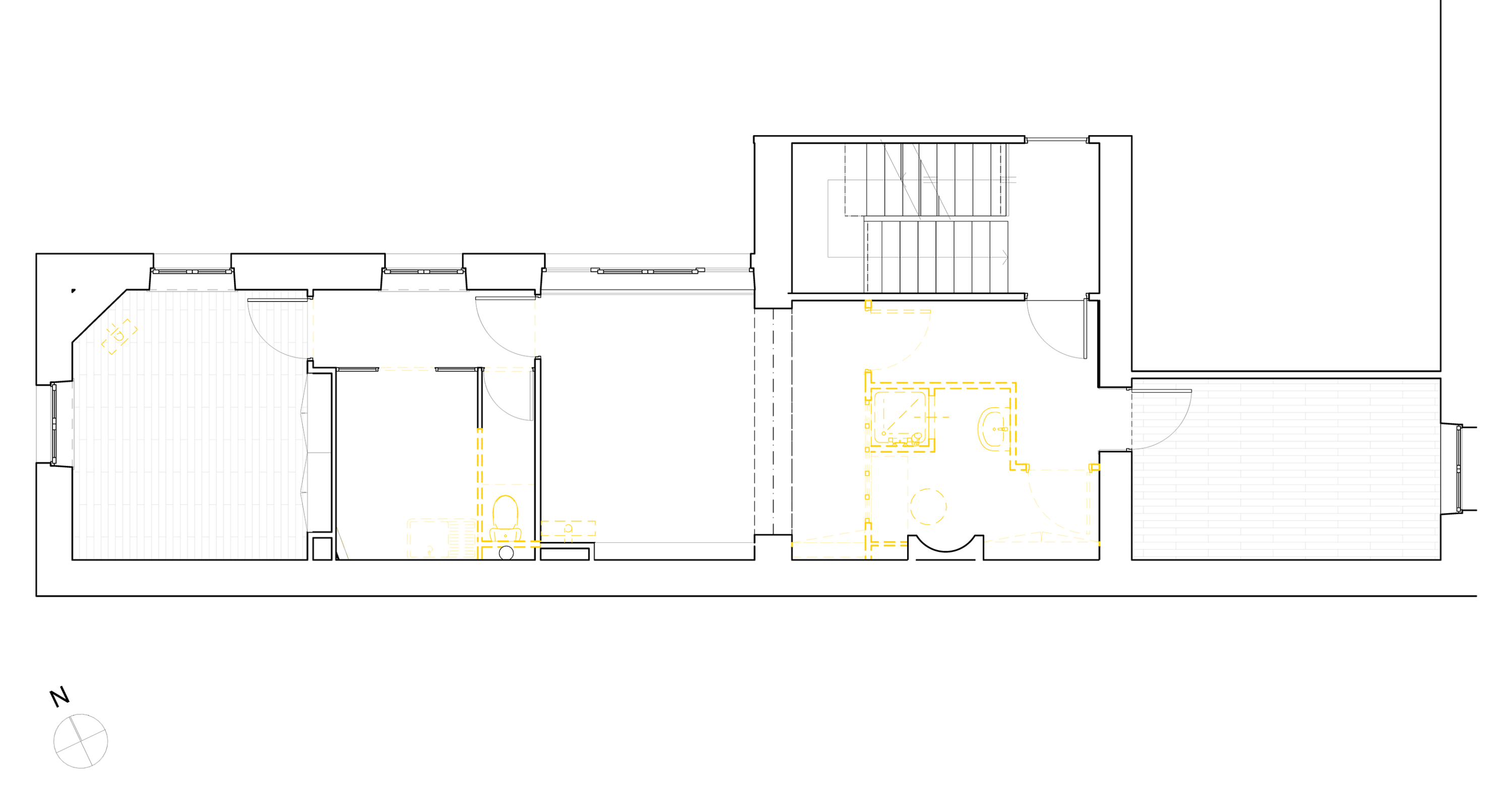
L’appartement «T» présente une configuration atypique avec ses 19 m de longueur pour 3.5 m de largeur. Initialement, il souffrait d’une distribution très cloisonnée
qui supprimait la sensation d’espace que pourtant le logement avait le potentiel d’offrir.
L’intervention a principalement consisté à intervertir la salle de bains et la cuisine. Initialement dans l’entrée du logement, la salle de bains verrouillait l’espace de l’entrée, tandis que la cuisine était coincée à proximité de la chambre sur cour sans communication avec le séjour. La réalisation d’une cuisine ouverte sur l’entrée et le séjour en lieu et place de l’ancienne salle de bains offre de nouvelles possibilités spatiales et augmente l’espace du séjour. Cette nouvelle cuisine s’articule avec une entrée grâce à une cloison en bois placée à l’extrémité de l’îlot central et au niveau de laquelle sont fixées des patères.











Plan de l’appartement avant travaux et des démolitions

Plan de l’appartement après travaux

